Who we are

CadLeistungen, A service of AvinZon IT Private Limited, is an India-based company with a solid reputation for delivering reliable, quality-driven, and cost-effective solutions. Serving clients worldwide, we specialize in end-to-end GIS, CAD, Floor Plan and 3D visualization services — including CAD drafting, data conversion, point cloud processing, 3D Revit modeling, utility mapping, and floor plans for real estate marketing. At CadLeistungen, we combine technical precision with competitive value to support diverse industries with smart, scalable solutions.

We’re driving digital transformation through precision, performance, and partnership. We don’t just provide services — we build lasting relationships grounded in trust, efficiency, and excellence.

CadLeistungen – Precision You Can See. Value You Can Trust.

What we do

cta image

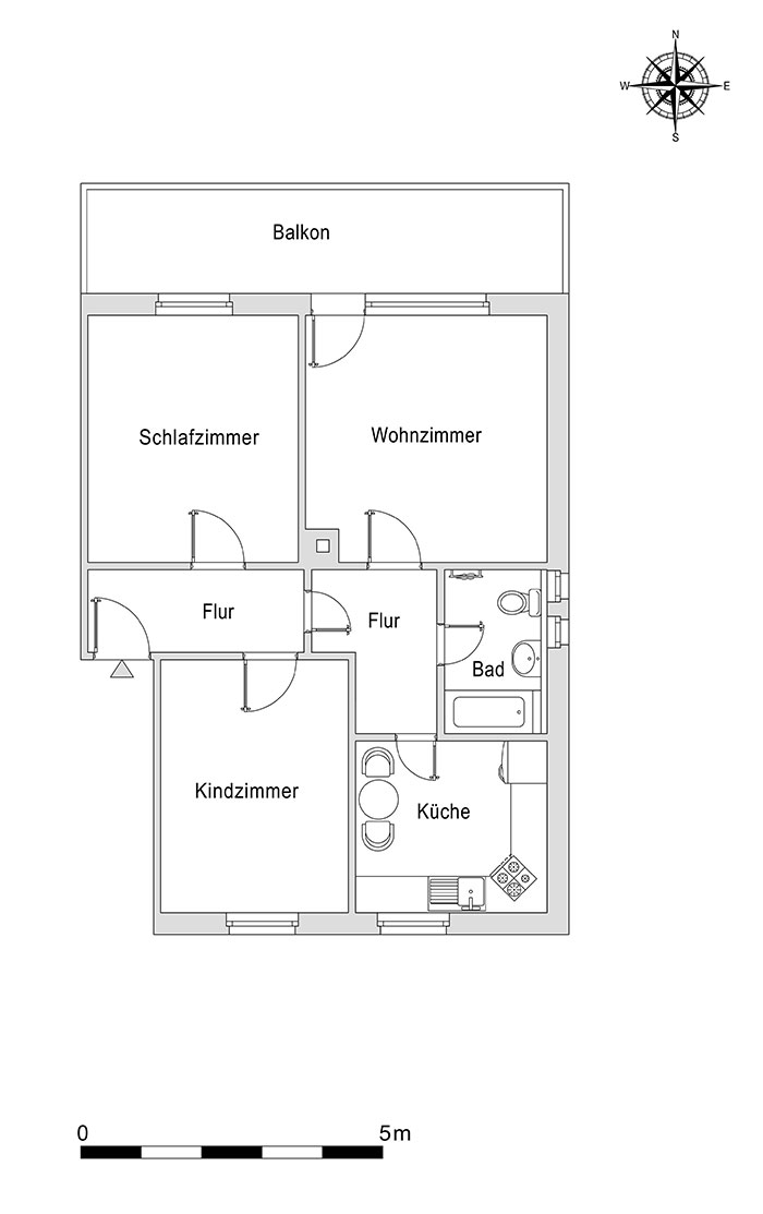
Floor Plan

Now it even easier, simple, fast, inexpensive, effective to get your floor plan. That’s the aim of the cad Leistungen team.
cta image

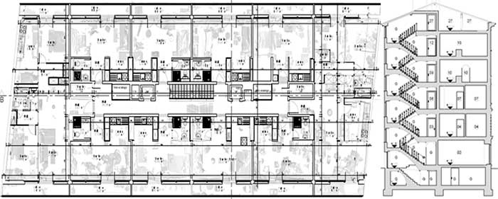
Point Cloud to 2D

3D Point Cloud is a software concept and is a very useful one for various purposes. 3D representation of existing structure.
cta image

CAD Services

Our CAD data conversion solutions are highly accurate as we make use of the most advanced computer-aided design

Order now and receive your professionally created floor plans within 24-48 hours

  • Order floor plans online
  • Professionally drawn floor plan services
  • Floor plans for real estate marketing
  • Real estate marketing Floor plan start from 5,- €
  • Dimensioned floor plans within 24-48 hours, from just 8 euros
  • 2D/3D floor plan services for residential buildings and Based on as-built plans and hand sketch (TIFF, JPG, PDF, and PNG).
  • Delivery in DWG, PDF and JPG
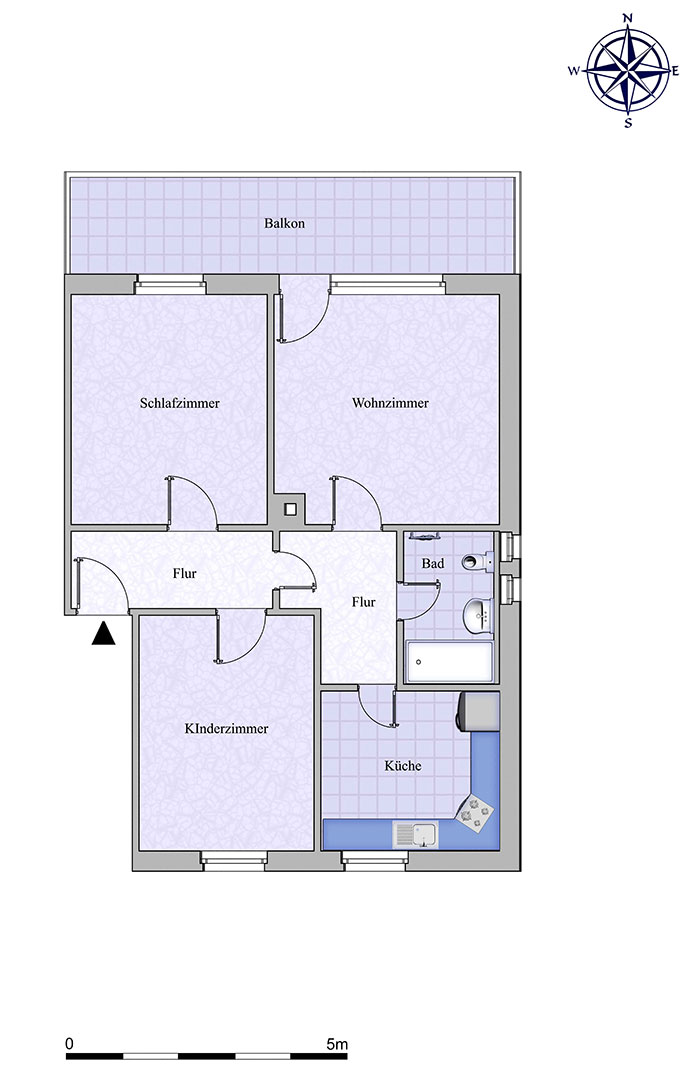
3D Floorplan Layout €15
product-logo
Type 1+ €14
product-logo
Type 2+ €14
product-logo
Type 3+ €14
product-logo
Type 4+ €14
product-logo
Type 5+ €14
product-logo
Type 6+ €14
product-logo
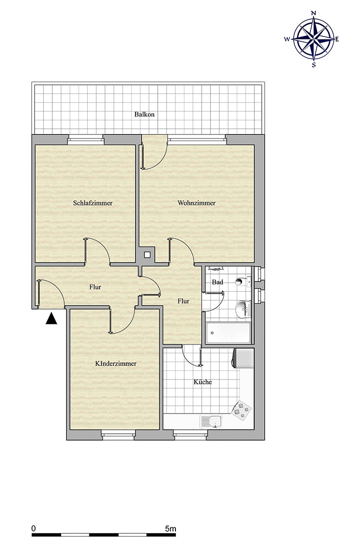
Basic €5
product-logo
Solid Basic €5
product-logo
Basic + €7
product-logo
Solid Basic + €7
product-logo
Color Blue €6
product-logo
Color Green €6
product-logo
Color Brown €6
product-logo
Color Red €6
product-logo
Color + Blue €9
product-logo
Color + Brown €9
product-logo
Color + Green €9
product-logo
Color + Red €9
product-logo
Exclusive Blue €6
product-logo
Exclusive Brown €6
product-logo
Exclusive Green €6
product-logo
Exclusive Red €6
product-logo
Exclusive + Blue €9
product-logo
Exclusive + Brown €9
product-logo
Exclusive + Green €9
product-logo
Exclusive + Red €9
product-logo
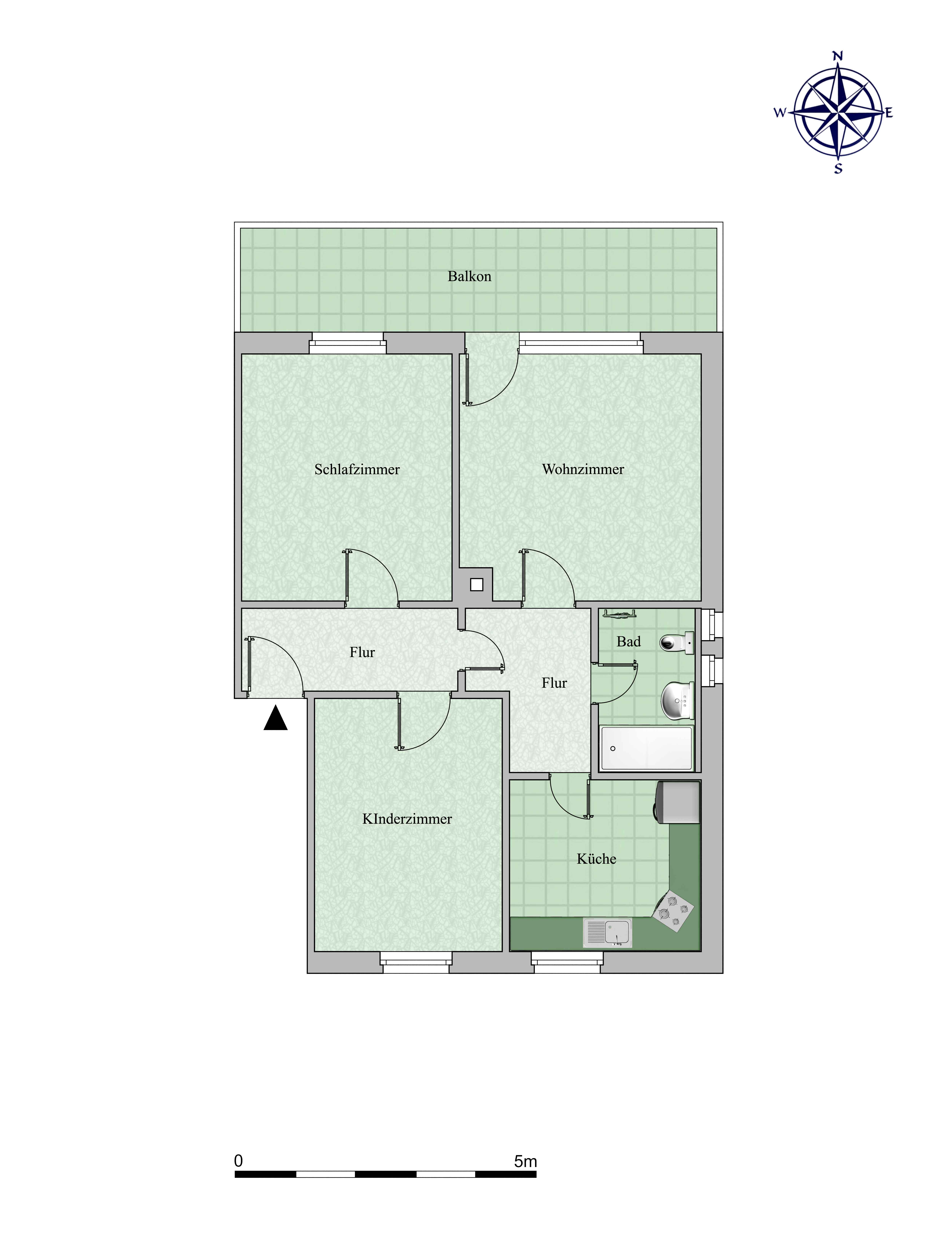
Comfort + Blue €9
product-logo
Comfort + White €9
product-logo
Comfort + Red €9
product-logo
2D Floorplan Layout €12
product-logo
Multicolor €10
product-logo
Spl.3 €10
product-logo
Spl.2 €10
product-logo
Spl.1 €10
product-logo
Apartment Building/unit €8
product-logo
2D Site plan ab €40
Email for Price
product-logo
3D Site plan ab €45
Email for Price
product-logo
2D-Elevation ab €17
Email for Price
product-logo
2D-Section ab €17
Email for Price
product-logo
Comfort Blue €7
product-logo
Comfort White €7
product-logo
Comfort Red €7
product-logo
Type 7+(Grey) €20
product-logo
Type 8+(White) €20
product-logo
Type 9+ €20
product-logo
Type 10+ €20
product-logo
Type 11+ €20
product-logo